Prodej novostavby rodinného domu 4+kk v Hýskově u Berouna
Objevte novostavbu rodinného domu v Hýskově, kde se klid přírody setkává s moderním komfortem.
Tento dům je připraven stát se bezpečným a útulným domovem pro vaši rodinu.
Objevte novostavbu rodinného domu v Hýskově, kde se klid přírody setkává s moderním komfortem.
Tento dům je připraven stát se bezpečným a útulným domovem pro vaši rodinu.
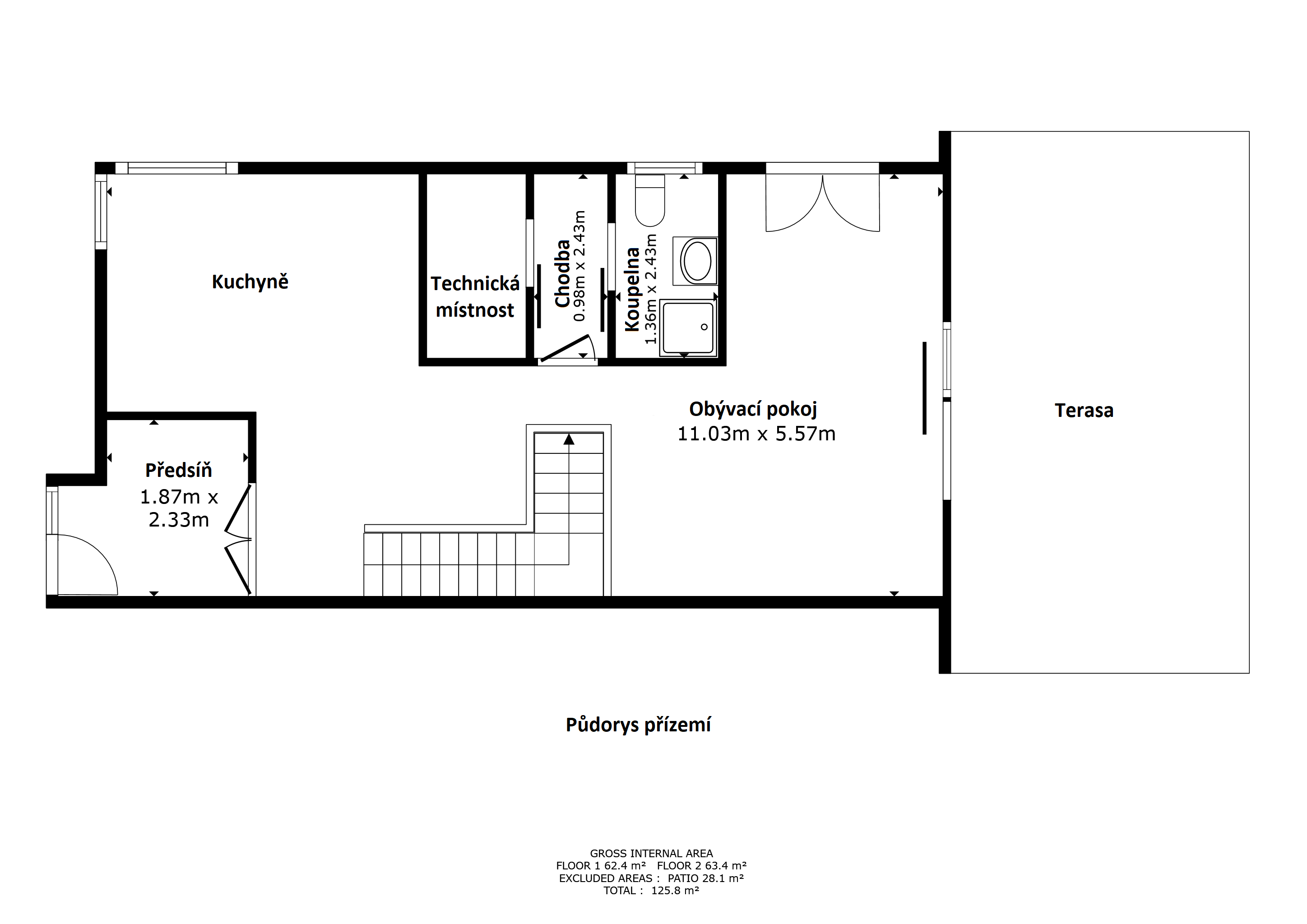
Společnost REALITY Brodan & Kutzendörfer Vám exkluzivně nabízí moderní novostavbu rodinného domu 4+1 o obytné ploše 142 m² v obci Hýskov u Berouna. Nemovitost je součástí architektonicky zdařilého projektu Viladomy Jakubinka a poskytuje komfortní bydlení ve dvou podlažích s důrazem na kvalitu a moderní řešení.
klidná lokalita na okraji obce, přímo pod lesem
pozemek 358 m² – oplocená zahrada, slunečná terasa, parkování pro 2 vozy na vlastním pozemku
moderní dispozice – obývací pokoj se dvěma francouzskými okny, kuchyň s výhledem do zeleně, 2 koupelny, technická místnost, 3 ložnice
nízké provozní náklady – podlahové teplovodní vytápění s regulací v každé místnosti, rekuperace vzduchu
komín a příprava na krbová kamna
prvotřídní materiály – dřevěné obložení domu (bezúdržbově ošetřené), žulová dlažba kolem domu
příprava na předokenní žaluzie nebo rolety
domácí úpravna vody, nádrž na dešťovou vodu a zahradní domek
dokončené terénní úpravy – dům je připraven k okamžitému nastěhování
Obec Hýskov je vyhledávaným místem pro rodinné bydlení – spojuje klid přírody s výbornou dostupností do města.
Beroun – 7 minut jízdy, rychlé napojení na dálnici D5
Praha – do 30 minut autem
kompletní občanská vybavenost v místě – obchod, lékař, škola, školka, restaurace, sportoviště (hřiště, tenisové kurty)
přímo v obci řeka Berounka – ideální pro plavce, rybáře i cyklisty (cyklostezka podél řeky)
okolí tvoří Křivoklátské lesy – oblíbená rekreační oblast s možnostmi turistiky a odpočinku
K nemovitosti nabízíme možnost financování prostřednictvím nejvýhodnějších hypotečních úvěrů, případně financování bez nutnosti prokazování příjmů.
Na prohlídku Vás rád osobně pozve Michal Kutzendörfer, realitní expert, REALITY Brodan & Kutzendörfer.
Poskytnu Vám veškeré informace a zodpovím dotazy, abyste se mohli správně rozhodnout.
Tento rodinný dům splňuje energetickou třídu B – velmi úsporná. Díky kvalitnímu zateplení, moderním technologiím a efektivnímu provozu nabízí nízké náklady na vytápění i celkový chod domácnosti. Energetická úspornost je zárukou komfortního a ekonomického bydlení.

Nemovitost je zapsána na listu vlastnictví č. 1584 pro obec Hýskov, okres Beroun.
Jedná se o stavební parcelu se zastavěnou plochou a nádvořím o výměře 84 m² a zahradou o výměře 285 m².
Vlastníkem nemovitosti je prodávající – právnická osoba H2SK Projekt s.r.o., bez omezení vlastnického práva kromě věcného břemene inženýrských sítí.
Nabídková cena této novostavby činí 12 990 000 Kč.
Při podpisu rezervační smlouvy se hradí rezervační záloha ve výši 2 % + DPH, tedy částka 314 760 Kč.
Uvedená cena je včetně kompletního právního servisu, a to včetně advokátní úschovy kupní ceny u spolupracující advokátky JUDr. Zuzany Pospíšilové, evid. č. ČAK 12403.
? Zaujala vás tato nemovitost? Rádi vám poskytneme podrobné informace k podmínkám rezervační smlouvy a zajistíme prohlídku přímo na místě. Neváhejte mě kontaktovat.
Jmenuji se Michal Kutzendörfer a od roku 2007 působím jako realitní makléř v Berouně a okolí. Pomáhám klientům s prodejem nemovitostí – bytů, domů i pozemků. Využívám moderní technologie: 3D virtuální prohlídky Matterport, video prohlídky, profesionální fotografie a Home Staging. Aktivně pracuji se sociálními sítěmi a online marketingem, aby vaše nemovitost získala co nejvyšší dosah. Mým cílem je prodat za nejlepší cenu v co nejkratší době. Zakládám si na férovém přístupu a dobrém jménu, za které mluví reference spokojených klientů.